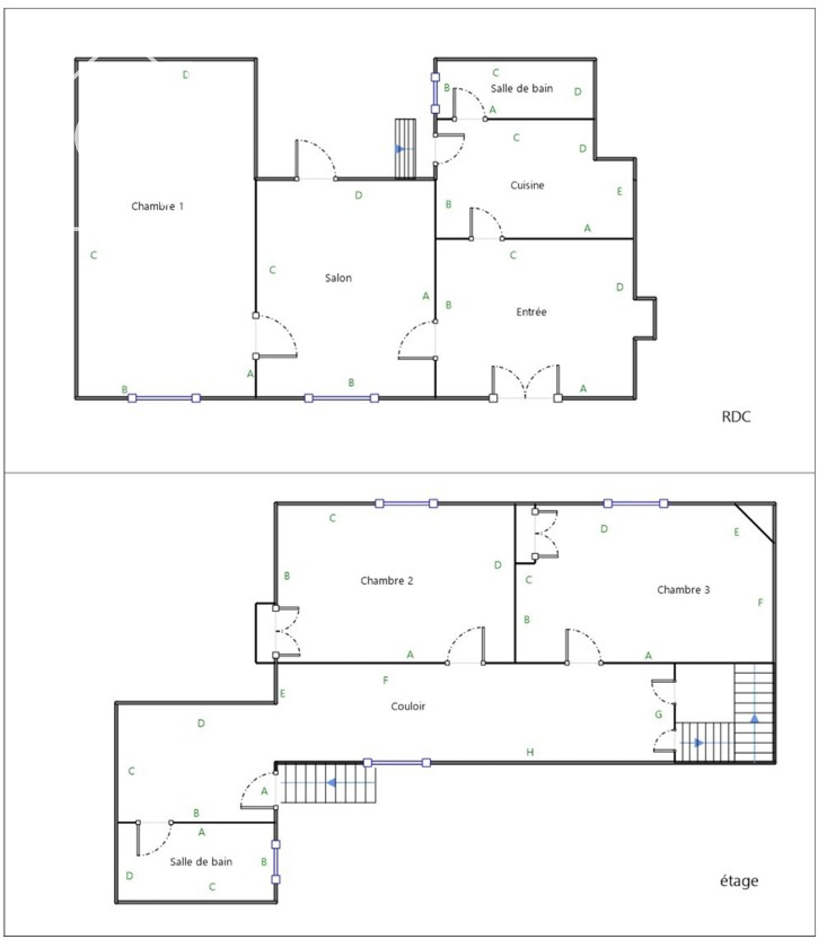
Maison d'habitation donnant sur rue composée au rez de chaussée de trois pièces, cuisine, wc et douche.
A l'étage un couloir dessert deux chambres, une salle de bain avec wc.
Grenier au dessus.
Cour dans laquelle se trouve une buanderie, remise et wc.
Une grange à proximité accessible par un passage commun et cour commune.
Un jardin accessible par une ruelle partant de la cour commune.
