• Acheter Du neuf
Dans un rayon de
Budget
Mini
Maxi

    Faites estimer votre bien par un professionnel

    1 annonce(s) immobilière(s) : Maisons neufs en offres programmes neufs sur Contres

    Trier par
    Les plus récentes
    • Prix croissant
    • Prix décroissant
    • Les moins récentes
    • Les plus récentes
    • Surface croissant
    • Surface décroissant
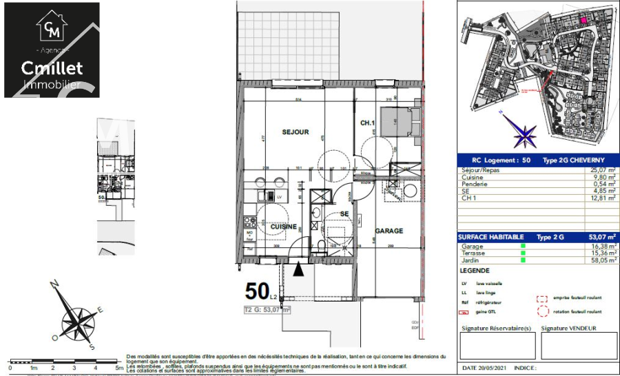
    Contres (41700)

    Maison

    146 200 €
    Proposé par
    cmillet immobilier